{ window.scrollTo(0,0) });" x-data x-cloak >
Home
RESIDENTIAL
COMMERICAL
MULTI FAMILY
Blog
CONTACT
SHOP
More...
Home
RESIDENTIAL
COMMERICAL
MULTI FAMILY
Blog
CONTACT
SHOP
Your Cart
Home
RESIDENTIAL
COMMERICAL
MULTI FAMILY
Blog
CONTACT
SHOP
Your Cart
ALPINE RESIDENCE
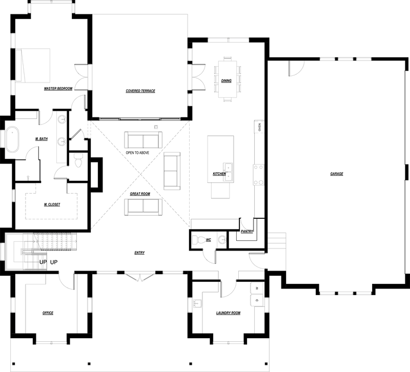
MAIN FLOOR PLAN
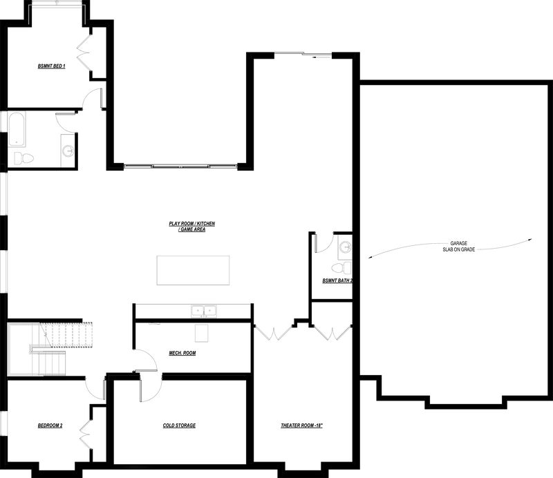
BASEMENT FLOOR PLAN
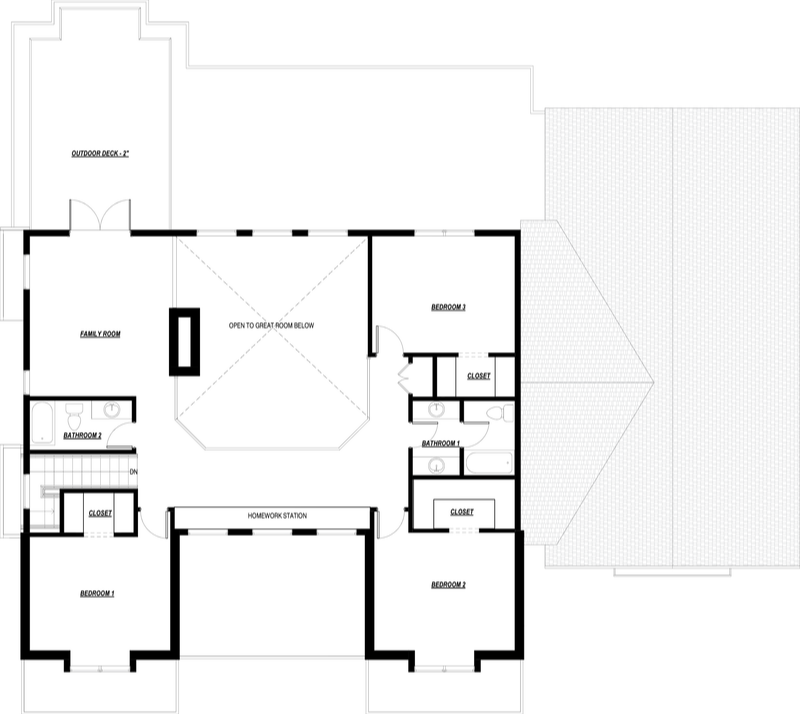
UPPER FLOOR PLAN